小姐联系信息大全_广深佛莞珠江夜猫子论坛_广东夜猫子品茶论坛

欢迎光临河北冀力重型机械设备有限公司 联系我们|收藏本站|网站地图

河北冀力重型机械设备有限公司

集研发、生产、销售于一体的大型企业

全国服务热线:400-606-7227

您的位置: 首页 > n式传动

n式传动

返回首页 来源:本站原创 发布日期:2019年05月08日
一、概述
我公司生产的轴流空冷风机主要用于石油、化工、冶金等空冷器配套使用,具有风量大、效率高、振动小、噪声低、使用维护方便等特点。
本系列产品的设计制造符合JB1416-87《一般用途轴流通风机技术条件》。
为满足用户工况条件的不同,风机有高效节能型、低噪型、防腐型等不同类型,以适应用户需要。
根据安装使用条件,风机 风量调节方式可分为自调、半自调、手调三种,冷却方式可分为鼓风式和引风式。安装结构形式有b;c;e;f;g;h;k;n;q等多种形式。
二、空冷器风机型号含义及结构说明
1、风机型号含义:


2、风机直径:
(1) 自调、半自调风机,直径为1.8-4.27米(6-14英尺)
(2) 手调风机,直径为1.8-4.5米
3、风机调角方式:
(1) ZF:不停机自动调角式(简称自调式)风机。
通过仪表信号压力变化,风机在运行中自动调节叶片的角度用以改变风量。信号气源压力为20-100KPa;工作气源压力为300KPa。
(2) BF:不停机半自动调角式(简称半自调)风机
在风机运行中,手动调节工作气源压力,可随时调节叶片角度用以改变风量,工作气源压力为200KPa。
(3) SF:停机手调角式(简称手调式)风机
停机后调节叶片角度。
4、叶片系列(玻璃钢材料)
(1) TB系列(FJ3)标准型;节能型;噪声值≤85dB。
(2) TC系列(FJ7)较宽型;适中型;噪声值≤83dB。
(3) TW系列(FJ19)宽型;降噪型;噪声值≤80dB。
以上三种系列叶片应相应轮毂、传动方式配套可组合成为多种型号的风机,以满足各种空冷器的配套使用。
三、空冷器风机传动方式及安装结构尺寸
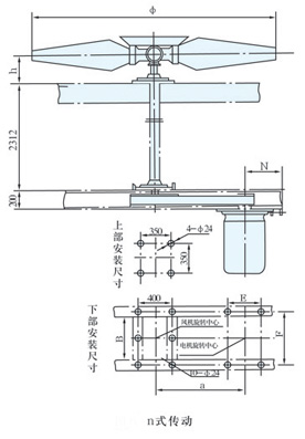
n式传动
适用于2.4-3.6米风机,吊挂式、引风式,安装尺寸见表

风机规格 安装尺寸

a

E F N B 备注
2.4米TB 765 340 730 420 646  
2.4米TC 670 340 730 420 646  
2.4米TW 694 340 730 420 646  
3.6米TB 960 400 730 450 646  
3.6米TC 745 400 950 450 866  
3.6米TW 765 400 950 450 866  
注:1、手调风机h=240,半自调风机h=410.
2、电机机座号不宜大于250。

全国服务热线:400-606-7227在线咨询

主站蜘蛛池模板: 乌审旗| 嫩江县| 梨树县| 大田县| 莱阳市| 玉溪市| 葫芦岛市| 隆德县| 望谟县| 基隆市| 黄大仙区| 孝感市| 兰溪市| 建昌县| 金坛市| 重庆市| 仙桃市| 油尖旺区| 泸定县| 宣武区| 汶上县| 沅江市| 永新县| 普宁市| 奉贤区| 牡丹江市| 东乡族自治县| 资溪县| 内江市| 襄汾县| 泾川县| 临西县| 南召县| 屯留县| 公安县| 文昌市| 汕尾市| 宾阳县| 东山县| 灵武市| 萨嘎县|